札幌信用金庫本店ビル・札幌ゼロゲート

施工例写真

札幌信用金庫本店ビル・札幌ゼロゲート

  • 札幌信用金庫本店ビル・札幌ゼロゲート
  • 札幌信用金庫本店ビル・札幌ゼロゲート
  • 札幌信用金庫本店ビル・札幌ゼロゲート
  • 札幌信用金庫本店ビル・札幌ゼロゲート
  • 札幌信用金庫本店ビル・札幌ゼロゲート
  • 札幌信用金庫本店ビル・札幌ゼロゲート
  • 札幌信用金庫本店ビル・札幌ゼロゲート

概要

所在地 北海道札幌市中央区南2条西3丁目15-1
用途 オフィス
物件概要
設計:
(株)久米設計
施工:
鹿島・岩田地崎・玉川共同企業体
規模:
地上11階、地下2階
構造:
S造・SRC造
工期(竣工年):
2016
竣工月:
2
商品性能・仕様
商品名:
SR-GARELIA D
構法パターン:
ノックダウン
建具意匠:
(外観)たて通し

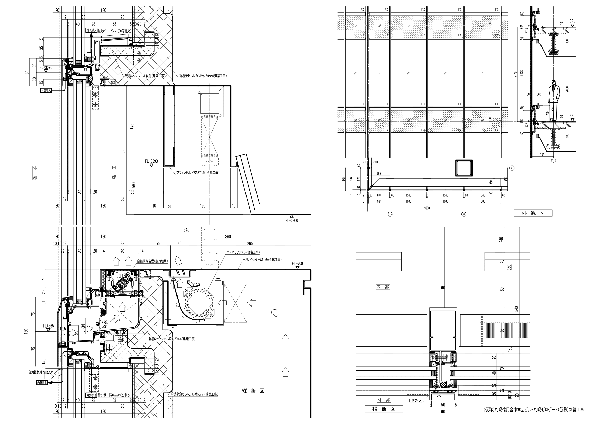
図面

※図面をクリックすると、PDFデータがダウンロードできます。

札幌信用金庫本店ビル・札幌ゼロゲート

PAGE TOP