GEMS茅場町

施工例写真

GEMS茅場町

  • GEMS茅場町
  • GEMS茅場町
  • GEMS茅場町
  • GEMS茅場町
  • GEMS茅場町
  • GEMS茅場町
  • GEMS茅場町

概要

所在地 東京都中央区新川一丁目1-7
用途 商業施設
物件概要
設計:
(株)鴻池組東京本店一級建築士事務所
施工:
(株)鴻池組東京本店
延床面積:
1828.47m²
規模:
地上10階
構造:
鉄骨造
工期(竣工年):
2018
竣工月:
3
商品性能・仕様
商品名:
SR-GRELLIA、他
構法パターン:
ノックダウン
建具意匠:
(外観)タテ通し(フレーム)
外観意匠:
(ファサードイメージ)全面ガラス
耐風圧性:
'+2139Pa、-1720Pa
気密性:
A-4
水密性:
一般部:1500Pa  可動部:W-5

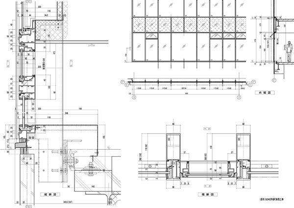
図面

※図面をクリックすると、PDFデータがダウンロードできます。

GEMS茅場町

PAGE TOP