独立行政法人 地域医療機能推進機構 大阪病院

施工例写真

独立行政法人 地域医療機能推進機構 大阪病院

  • 独立行政法人 地域医療機能推進機構 大阪病院
  • 独立行政法人 地域医療機能推進機構 大阪病院
  • 独立行政法人 地域医療機能推進機構 大阪病院
  • 独立行政法人 地域医療機能推進機構 大阪病院

概要

所在地 大阪府大阪市福島区福島4丁目2番78号
用途 医療・福祉施設
物件概要
設計:
(株)久米設計
施工:
(株)大林組
延床面積:
47,041.40m²
規模:
地上13階 地下1階
構造:
S造 免震
工期(竣工年):
2015
竣工月:
2
商品性能・仕様
商品名:
SR-GARELIA、FNS-EAT新型、NFB-100、サンエックス
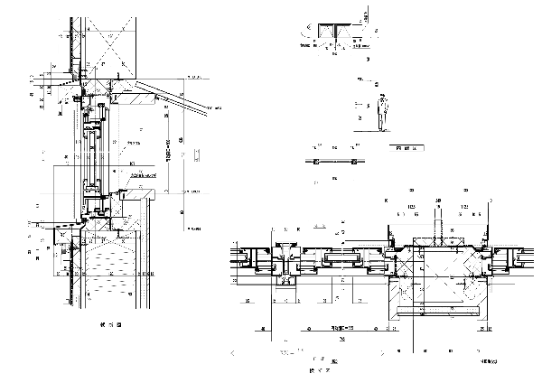
構法パターン:
BCP対応免震式サッシ枠、乾式ファスナー・ブラケット工法
建具意匠:
(外観)たて通し
外観意匠:
(ファサードイメージ)縦強調
耐風圧性:
2918.5Pa
気密性:
A-4
水密性:
W-5

図面

※図面をクリックすると、PDFデータがダウンロードできます。

独立行政法人 地域医療機能推進機構 大阪病院

PAGE TOP