JR東日本ホテルメッツ札幌

施工例写真

JR東日本ホテルメッツ札幌

  • JR東日本ホテルメッツ札幌
  • JR東日本ホテルメッツ札幌
  • JR東日本ホテルメッツ札幌
  • JR東日本ホテルメッツ札幌
  • JR東日本ホテルメッツ札幌
  • JR東日本ホテルメッツ札幌
  • JR東日本ホテルメッツ札幌

概要

所在地 札幌市北区北7条西2丁目5-3
用途 ホテル・リゾート施設
物件概要
設計:
大成建設(株)一級建築士事務所
施工:
大成建設(株)
延床面積:
6,732.42m²
規模:
地上13階
構造:
RC造
工期(竣工年):
2018
竣工月:
12
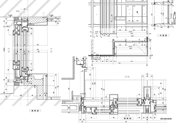
商品性能・仕様
商品名:
断熱100N、アルミルーバー
構法パターン:
面付け枠、アルミルーバー(ユニット式、ノックダウン併用)
建具意匠:
(外観)FIX窓
外観意匠:
(ファサードイメージ)東面;竪横ユニットルーバー、北面;横ノックダウンルーバー
耐風圧性:
S-4
気密性:
A-4
水密性:
W-5

図面

※図面をクリックすると、PDFデータがダウンロードできます。

JR東日本ホテルメッツ札幌

PAGE TOP