棚倉町文化センター

施工例写真

棚倉町文化センター

  • 棚倉町文化センター
  • 棚倉町文化センター
  • 棚倉町文化センター
  • 棚倉町文化センター
  • 棚倉町文化センター
  • 棚倉町文化センター
  • 棚倉町文化センター

概要

所在地 福島県東白川郡棚倉町大字関口字一本松58
用途 文化施設
物件概要
設計:
(株)古市徹雄・都市建築研究所
施工:
東急建設(株)
建築面積:
3,628m²
延床面積:
4,721m²
規模:
地下1階・地上5階
構造:
SRC造・RC造
工期(竣工年):
1995
竣工月:
9
商品性能・仕様
商品名:
オーダーカーテンウォール
構法パターン:
ノックダウン
外観意匠:
(ファサードイメージ)鉄骨マリオンタイプ
耐風圧性:
S-6<2800Pa>
気密性:
A-3<8等級線>
水密性:
W-5<500Pa>
遮音性:
TS-25

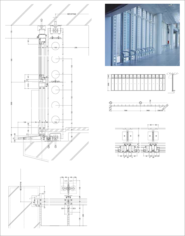
図面

※図面をクリックすると、PDFデータがダウンロードできます。

棚倉町文化センター

PAGE TOP