プルデンシャルタワー

施工例写真

プルデンシャルタワー

  • プルデンシャルタワー
  • プルデンシャルタワー
  • プルデンシャルタワー
  • プルデンシャルタワー
  • プルデンシャルタワー
  • プルデンシャルタワー
  • プルデンシャルタワー

概要

所在地 東京都千代田区永田町2-29-3
用途 複合施設
物件概要
設計:
大成建設(株)
施工:
大成建設(株)
建築面積:
3,502.41m²
延床面積:
76,634.2m²
規模:
地下3階・地上38階・塔屋1階(高さ157.94m)
構造:
S造(一部SRC造・RC造)
工期(竣工年):
2002
竣工月:
12
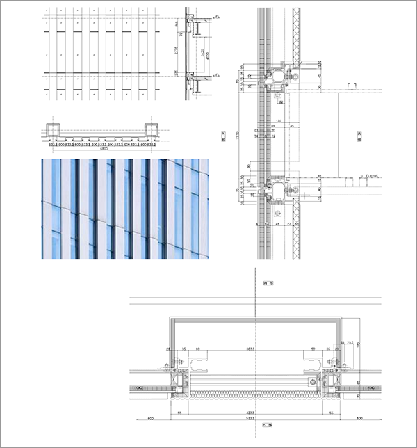
商品性能・仕様
商品名:
オーダーカーテンウォール
構法パターン:
ノックダウン
外観意匠:
(ファサードイメージ)スリットタイプ
耐風圧性:
+347kgf/m²、-486kgf/m²
気密性:
FIX部:0.5m³/m²・h
水密性:
FIX部:200kgf/m²(最大値)
遮音性:
T-2(30等級線)

図面

※図面をクリックすると、PDFデータがダウンロードできます。

プルデンシャルタワー

PAGE TOP