ホテルレオパレス博多

施工例写真

ホテルレオパレス博多

  • ホテルレオパレス博多
  • ホテルレオパレス博多
  • ホテルレオパレス博多
  • ホテルレオパレス博多
  • ホテルレオパレス博多
  • ホテルレオパレス博多

概要

所在地 福岡県福岡市博多区博多駅東2丁目5-33
用途 ホテル・リゾート施設
物件概要
設計:
(株)日建設計
施工:
三井住友建設(株)
規模:
地上11階・塔屋1階
工期(竣工年):
2007
竣工月:
5
商品性能・仕様
商品名:
NSR-KD (オーダー)
構法パターン:
ノックダウン
外観意匠:
(ファサードイメージ)全面ガラス
耐風圧性:
+2664Pa、-2400Pa
気密性:
FIX部:1m³/m²h(100Pa) 
水密性:
FIX部:1000Pa(平均値)

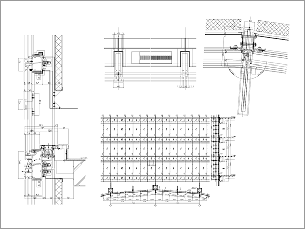
図面

※図面をクリックすると、PDFデータがダウンロードできます。

ホテルレオパレス博多

PAGE TOP