近畿大学 アカデミックシアター

施工例写真

近畿大学 アカデミックシアター

  • 近畿大学 アカデミックシアター
  • 近畿大学 アカデミックシアター
  • 近畿大学 アカデミックシアター
  • 近畿大学 アカデミックシアター
  • 近畿大学 アカデミックシアター
  • 近畿大学 アカデミックシアター
  • 近畿大学 アカデミックシアター

概要

所在地 大阪府東大阪市小若江3丁目4-1
用途 学校・教育施設
物件概要
設計:
(株)NTTファシリティーズ
施工:
(株)大林組
規模:
地上11階、棟屋2階
構造:
S造一部RC、SRC造
工期(竣工年):
2017
竣工月:
4
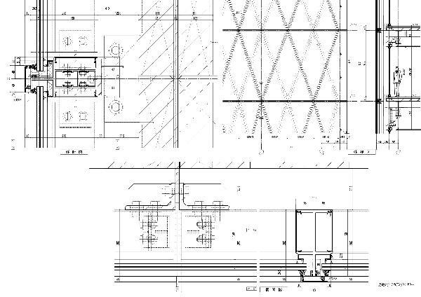
商品性能・仕様
商品名:
オーダーCW、オーダースクリーン、Comfort、FNS、ウインブレス
構法パターン:
ノックダウン及びユニット
建具意匠:
(外観)三角。市松模様
外観意匠:
(ファサードイメージ)全面ガラス
耐風圧性:
最大2495Pa
気密性:
A-4
水密性:
W-5

図面

※図面をクリックすると、PDFデータがダウンロードできます。

近畿大学 アカデミックシアター

PAGE TOP