区立小豆沢体育館 プール棟

施工例写真

区立小豆沢体育館 プール棟

  • 区立小豆沢体育館 プール棟
  • 区立小豆沢体育館 プール棟
  • 区立小豆沢体育館 プール棟
  • 区立小豆沢体育館 プール棟
  • 区立小豆沢体育館 プール棟

概要

所在地 東京都板橋区小豆沢3-4-1ほか
用途 スポーツ・レジャー施設
物件概要
設計:
(株)久米設計
施工:
鴻池・瀧島・古川建設共同企業体
延床面積:
3648.28m²
規模:
地上3階、地下1階
構造:
S造
工期(竣工年):
2018
商品性能・仕様
商品名:
SR-GARELIA
構法パターン:
ノックダウンCW
建具意匠:
(外観)縦勝ち硝子スクリ-ン
外観意匠:
(ファサードイメージ)ガラススクリーン
耐風圧性:
正圧:P=2752Pa、負圧:一般部P=2123Pa・隅角部P=2634Pa
気密性:
一般部:0.5等級、可動部:JIS等級A-4
水密性:
1000Pa

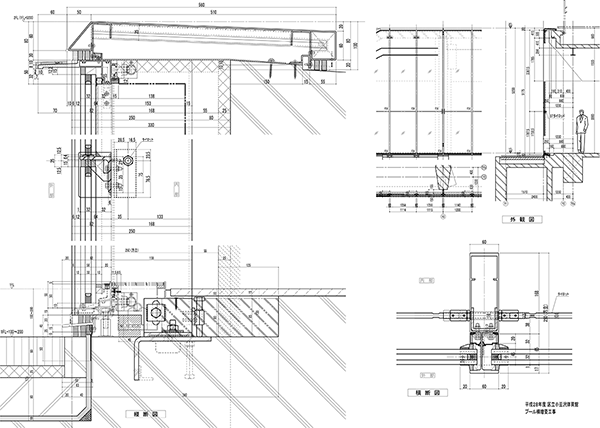
図面

※図面をクリックすると、PDFデータがダウンロードできます。

区立小豆沢体育館 プール棟

PAGE TOP